Home
About
Projects
Contact
MENU
Menu
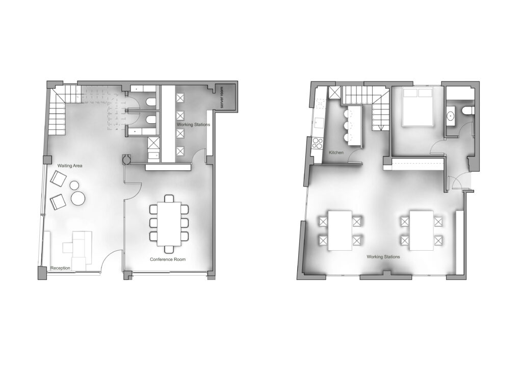
Offices Elefsina
Date
2.03.2023
Services
Interior Design
Share on
Prev post
Traditional Stone Villa – Syros Island
Next post
Showroom Meyia
Input your search keywords and press Enter.
/wp-content/uploads